本項目為深圳市龍崗區龍年廣場近300平方米的一個極簡工業風新辦公場地,是由我司負責裝飾裝修及空間設計的公司辦公空間。在整體空間的格調設計中,該辦公空間的室內環境采用了舒適的極簡工業風格進行裝修打造,以簡約大方為主基調,運用大面積的白色調和暖色調中間加入深色調來表達空間的層次感。同時,設計師在部分地面和墻面使用了工業風水泥元素,與簡潔的空間布局、用色融為一體更體現出質樸簡單的氛圍。
通過室內建筑的方式來梳理內絡和結構,再對其界限進行重組和再打破,借助既定的格局來強化對相關設計語言的引導性敘述,也意在為項目注入更多的可對外傳輸點,以此來更有效的反饋到對自身空間的操作性思考。
不設內與外的精準界限,試圖通過再結合的方式來連接人與空間,人與人及人與環境的情感維系,也透過更多維的角度發散去重拾日常所被忽略的斷層,讓回歸的意義更落實到日常和更為平凡的事件,再通過我們自己的方式去挖掘更多不同的生活方式探討和對人性的再思考,讓空間更具可考究及情感共鳴的建立。


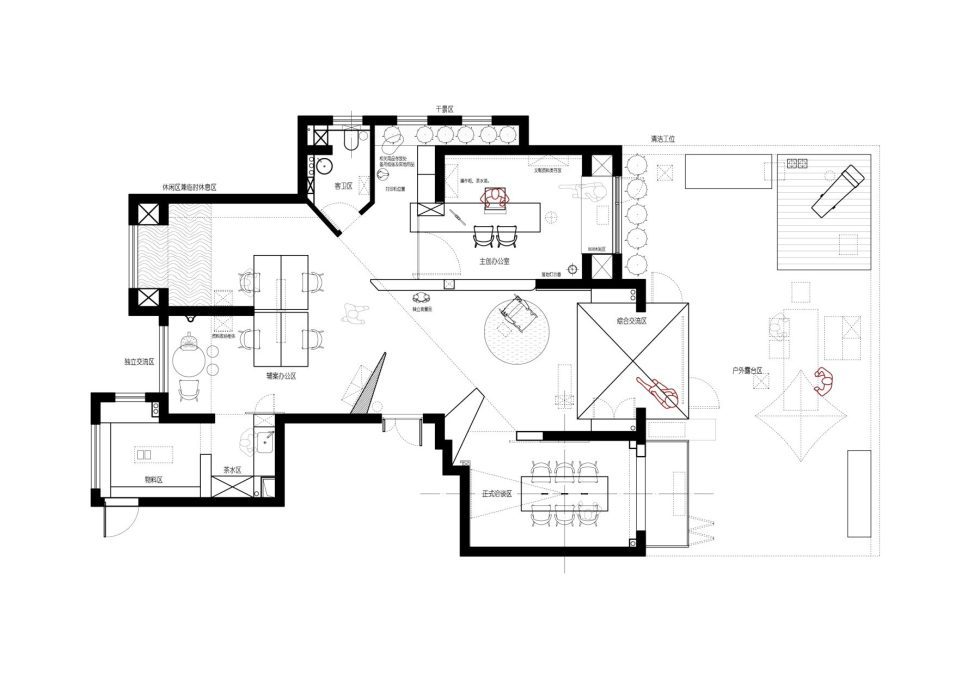
入口處左右增加了隔斷,增加了工作人員的工作私密性,儲物柜和背景墻同時增加了儲物收納。

綜合交流區像一個木盒子創插在室內,增加了臺高,高低落差和落地窗的結合,給人自然放松的氛圍。

彩色的油畫減少了空間的嚴肅冷清,大面積折疊窗增加了空間的采光。

四張黑色青石板拼接成的桌子,加上深木色的椅子,為該空間添加了些嚴謹。

白色的墻面、大面積的落地窗,這個角落像是給工作人員之間交談使用,又像是獨自交流的空間。

純白色的墻面和柜臺、打印機與木地板形成對比,采光處放置綠植使空間變得安逸。

辦公室的辦公桌采用超長的黑色青石板鏈接到走廊,窗臺同時做低變成一個休閑區,減少了會客之間的距離感。點擊查看更多辦公室裝修案例推薦

茶水區延伸了空間的極簡風格,全部采用白色;玻璃推拉門一門兩用,做為開關門同時為儲物柜防塵。

整體空間打通了大部分隔墻,部分用柜子作為隔斷,使每個空間更加親近銜接。







