項目地點:深圳市龍崗區橫崗
設計理念:本案是一所現代風品牌女裝店面店鋪裝修設計案例,由深圳信欣裝飾公司設計團隊傾力打造,品牌的主要客戶定位是年輕女性的群體,設計師選擇現代簡約的風格,以素雅的墻頂面,搭配暖黃色的燈光,以暖色調來裝點整個空間,空間看起來簡約時尚,十分舒適,但又不至于落入俗套。
門廳的設計,選擇了黑色和白色的經典搭配,永不過時百搭款,落地式的透明玻璃窗設計,第一眼望去低調簡單而不失高端的感覺。大廳的設計,則采取了開放式的設計方式,白色的石膏頂面,暖黃色的外擴式燈槽,黑白兩色的軌道式吊燈,現代風格的串燈,就好像一個個白色的泡泡,有一種夢幻般的美感。暖黃色的地面,和中島臺的搭配,注入了一絲溫馨的靈魂,明亮開闊的環境,給顧客提供了挑選心愛衣服的舒適環境。

深圳市龍崗區橫崗現代風女裝店pin Xi「暗香 女裝」裝修設計門廳
現代風女裝店暗香 女裝裝修設計門廳,白色去墻面,黑色原木飾面板包邊的柱子,加上金標的點綴,高檔大氣,非常有格調。

深圳市龍崗區橫崗現代風女裝店pin Xi「暗香 女裝」裝修設計大廳收銀臺
現代風女裝店鋪暗香 女裝裝修設計大廳,米黃色的地磚鋪貼,如夢幻泡泡般的現代風格吊燈,給明亮寬敞的大廳環境注入了一絲溫度。

深圳市龍崗區橫崗現代風女裝店pin Xi「暗香 女裝」裝修設計大廳
現代風女裝店暗香 女裝裝修設計大廳,白色石膏板的頂面,外擴式暖黃色的燈槽,黑色的軌道射燈,讓頂面更具活力和延伸感。

深圳市龍崗區橫崗現代風女裝店pin Xi「暗香 女裝」裝修設計服裝展架

深圳市龍崗區橫崗現代風女裝店pin Xi「暗香 女裝」休息洽談沙發

深圳市龍崗區橫崗現代風女裝店pin Xi「暗香 女裝」靠窗服裝展示架

深圳市龍崗區橫崗現代風女裝店pin Xi「暗香 女裝」收銀臺

深圳市龍崗區橫崗現代風女裝店pin Xi「暗香 女裝」裝修設計大廳

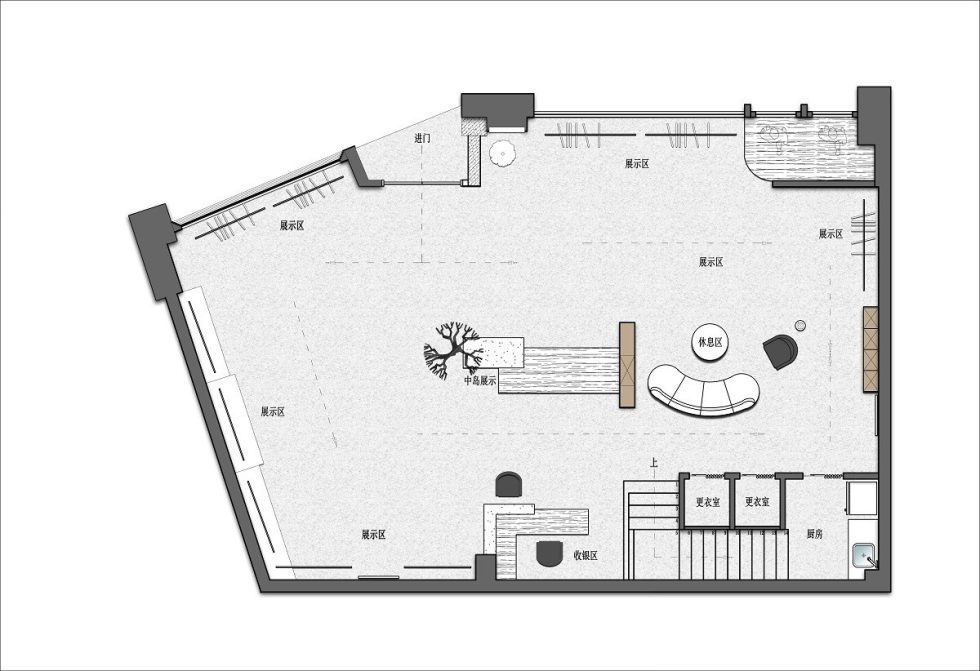
深圳市龍崗區橫崗現代風女裝店pin Xi「暗香 女裝」裝修設計平面圖




