項目地點:深圳市龍崗區平湖
設計理念:擁有獨特店鋪形象的造型沙龍,對于熱愛社交網絡的城市年輕人來說,尤其具有吸引力。連鎖造型沙龍品牌 設計提出了對深圳一所店鋪空間進行設計升級的需求,希望通過空間設計的升級來打造具有辨識度的潮店形象,能借助社交網絡媒介,將分散在城市角落的客戶聚合起來,擴大品牌影響力。美發造型本身是一項耗時長的服務,而 服務的客群主要為時尚的、充滿夢想的九零后年輕一代,空間設計上需要提供更多豐富體驗來刺激感官。因此,設計團隊在提供更舒適的體驗環境之余,同時還創造出符合流行趨勢又帶有藝術氣質的留影場景,讓顧客在放松的氛圍下,愉悅地享受一趟美麗蛻變之旅,并激發起社交活力。方與圓是定義這個空間的幾何語言線索。方如理發師手中剪刀,圓如柔軟發絲,剛柔并濟。設計師游弋于方圓之間,糅合規整與圓融,凝練出靈動而獨特的空間氣質。
▼店鋪外觀
深圳美發造型沙龍外立面裝修設計
方塊的組合
立面以幾何方塊組合的姿態,重新呈現于街區之中。與原來敞開式的門面做法不同,改造后下方的洞口成為窺視內部場景的唯一取景框,內部的精彩變得收斂而神秘,視野則聚焦在人的活動范圍;上方的洞口以反光玻璃遮蓋,與街景相映成趣。入口設置在右側,為豐富內部功能場域提供了充足的空間,亦是蛻變之旅的起點。化大為小的設計手段,使得空間立面在光影變幻之間,產生微妙的表情變化,激蕩起充滿趣味的城市想象。
曲徑的介入
圓弧曲徑廊道是連接室內外的過渡地帶,也是提供給顧客留影的場景之一。凹凸不平的鏡面是設計師埋下的荒誕趣怪的種子,放大或縮小,妙趣橫生。條形界面刻畫出廊道的秩序感,將人的視覺層層推進,引領顧客抵達隱藏在入口背面的前臺位置。圓形元素進一步被運用,玫瑰金屬材質和地面的文化石賦予空間更鮮明的屬性:時髦而優雅。
▼曲徑廊道營造妙趣橫生的場景

深圳美發造型沙龍前臺裝修設計
柔軟的角落
設計師重新劃分出等候區,為前來造型的顧客或其同伴提供一個舒適的等候空間。整個空間在白色和玫瑰金屬色的主基調下,輔以暖色沙發及藝術裝飾品,共同營造如會客廳般的輕松自在氛圍,增加親和力。由天花向下延伸的隔斷面,擬定了等候區與理發區之間的邊界,但這并非絕對封閉,共享性與私密性都能兼顧。
▼從外立面的洞口望向等候區

▼等候區營造如會客廳般的輕松自在氛圍

▼隔斷面擬定了等候區與理發區之間的邊界

▼理發區軸測圖

▼理發區概覽,雕像裝置為美發空間注入靈動的藝術氣息

▼空間中的燈光設置表現得克制

▼理發區中央的管形藝術吊燈
深圳美發造型沙龍造型區裝修設計
開放的舞臺
理發區是一個全開放的區域。整齊劃一的座位排布,形成規整的序列,搭建起理發師展現精湛手藝的舞臺。佇立在在舞臺中央的藝術雕像和懸掛在天花下的球體燈飾,則在打破這種均質關系,為整個空間注入靈動的藝術氣息。燈光照明上,設計師采用了盡量克制的方式,以理發區中央的管形藝術吊燈來提亮空間,使顧客能夠沉浸在柔和的氛圍之中。
▼藝術吊燈細部

▼為特別需求的客戶,設計師設置了 VIP 區
深圳美發造型沙龍VIP區裝修設計
變化的場域
區別于開放的理發區,VIP 區的設立為高端客戶提供私密場所,以提升服務質感。設計師通過材質來實現公共與私密的場景切換:鏡面和黑色板材作為墻體,搭配玻璃吊燈及金屬裝飾,整個空間彰顯沉穩的高級感。

深圳美發造型沙龍洗手間裝修設計
▼洗手間的墻體采用帶有粗曠紋理的灰石,通過材質來實現場景的切換
在實際經營的過程中,設計師發現不少顧客會在空間中留影,并上傳影像至社交網絡,繼而吸引下一波新的顧客前來消費,提高店鋪的知名度及流量,這正正達到設計師預期的設計目標。DPD 相信,設計是促使商業運作模式的進步與轉變的強大動力。設計師通過對店鋪空間重新組織,創造符合目標客群需求的空間,打破傳統造型美容店鋪的枯燥格局,并幫助品牌在商業上有進一步的提升和拓展。
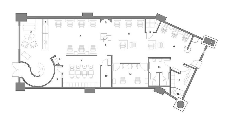
▼平面圖








