項目地點:深圳市福田區梅林
設計理念:本案是一所北歐風的美容養生店裝修設計,北歐風格與裝飾藝術風格、流線型風格等追求時髦和商業價值的形式主義不同,北歐風格簡潔實用,體現對傳統的尊重,對自然材料的欣賞,對形式和裝飾的克制,以及力求在形式和功能的統一;在建筑室內設計方面,就是室內的頂、墻、地三個面,完全不用紋樣和圖案裝飾,只用線條、色塊來區分點綴。
在家具設計方面,就產生了完全不使用雕花、紋飾的北歐家具,實際上的家具產品也是形式多樣。如果說它們有什么共同點的話那一定是簡潔、直接、功能化且貼近自然,一份寧靜的北歐風情,絕非是蠱惑人心的虛華設計。
北歐風格以簡潔著稱于世,并影響到后來的”極簡主義”、”簡約主義”、”后現代”等風格。在20世紀風起云涌的”工業設計”浪潮中,北歐風格的簡潔被推到極致。

- 深圳福田美容養生店前臺裝修設計
前臺的裝修設計,白色的墻面和灰色大理石紋理的地磚應用,落地式的玻璃門窗,整個空間光線飽和度高,明亮開闊,原木風紋理的前臺,體現出至簡,樸素的生活方式。




- 深圳福田美容養生店美甲區裝修設計
原木風的素雅,通透式的置物柜,有空間分隔的作用,又隔而不斷不影響光線的投入,簡單的墻面置物架,原汁原味的原木桌椅,營造出溫馨和自然的北歐情懷。




- 深圳福田美容養生店會客區裝修設計
整體白色的效果,外擴式的燈條,帶動整個空間的氣息,看起來靈動活躍而不顯得呆板,白色石膏板的波浪紋背景墻,依山傍水的休閑方式,盡享精致生活的情調。


- 深圳福田美容養生店樓梯裝修設計
原木的結構符合整體的一個主題特點,把樓梯做成樓梯柜,多了一個儲物空間的功能,鏡面式的門,可對整體空間的范圍做一個延伸和擴大,看起來整體效果更加的開闊和現代。

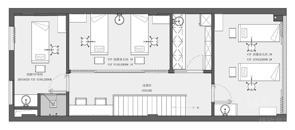
- 深圳福田美容養生店過道裝修設計
過道的設計,把空白區域作為一個梳妝臺,整體空間功能性強,滿足客戶使用需求的同時,盡顯北歐風實用價值至上的消費理念,不做多余花哨的裝飾,更不會浪費多余的使用空間。


- 深圳福田美容養生店美容間裝修設計
原建筑結構做一個簡單的刮白處理,搭配原木風的木地板,開發商落地窗的設計,用大面積光線引入當做設計的一部分,使空間看起來開闊透亮,而不會顯得擁擠狹小。

▼ 平面 Plan @Yo Design















