項目地點:深圳市寶安區松崗
設計理念:一直為顧客帶來嶄新面貌的杜尚發型品牌店,店鋪設計風格呼應其所在區位的客源屬性-為時尚女性打造的休閑體驗街區。一反商場中呈現的的人流喧鬧以及快速消費的生活形態,宣馳設計師嘗試將日式文化和建筑裝飾符號融入美發店室內設計中。充滿女性色彩的低飽和度暖色調,以安靜內斂的情感置入這個美發沙龍的空間氛圍中。

▼室內概覽

深圳寶安紅色美發店大廳裝修設計
在日本的建筑語匯中,小而獨立的空間規劃滿足了其多樣性的功能需求,鑒于此,設計師在空間布局上,合理劃分出多個小而通透的“小房間”。走在商場過道,前臺、水吧、等候區以及剪發區以最優美的形式展現給過客,制造生動而強烈的情景互動。木格柵一定程度上體現著日本的審美方式,作為統一的裝飾符號靈活貫穿于整個立面。入口處紅色鋼板雕刻的櫻花圖案,以現代的裝飾手法營造虛實相間的立體感。定制款雕塑,在燈光的照射下呈現靜穆的美。
▼入口區域,吧臺與休息區


▼紅色鋼板雕刻的櫻花圖案&木格柵和定制款雕塑


深圳寶安紅色美發店過道裝修設計
色彩與結構的呼應使整個空間更具統一性,穿過吧臺,轉角處便是獨立的等候休息區,綠色植物柔和的燈光照射下,增加一份舒適與溫馨感,使生活節奏變得舒緩。
▼等候休息區

深圳寶安紅色美發店等候區裝修設計
以過道為界,左右兩側分別布局剪發區和燙染區,增加空間利用率。頂部交錯的梁體架構,呼應墻面與空間的分割,重塑室內結構美感。頂部鋼板鏤空造型內嵌發光亞克力板,看似櫻花飄落,集裝飾性與照明功能于一體。
▼以過道為界,左右兩側分別布局剪發區和燙染區

▼燙染區


深圳寶安紅色美發店剪發區裝修設計
設計師在此空間同樣借鑒古代園林中框景的設計手法,剪發區以日式獨立存在的“小房間”為單元格重復陳列,半封閉式空間為客戶提供相對獨立尊貴的剪發體驗。在鏡子的反射下,室內裝飾作為一種嶄新的構圖形式被展現出來,趣味同生。
▼剪發區

▼半封閉式空間為客戶提供相對獨立尊貴的剪發體驗

深圳寶安紅色美發店VIP間裝修設計
顧客沖洗過頭發,在發型師的引導下,又進入另外一個獨立的美發空間,剪發與燙染可在此全部完成。此空間更像一個活動展示空間,透過偌大的落地窗,商場過客可以看到室內發型師操作的過程。空間的合理安排使品牌的服務理念得到宣傳,達到視覺營銷的效果。
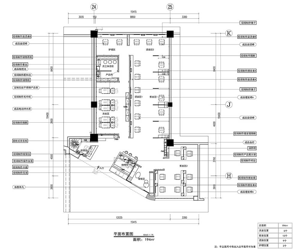
▼平面圖

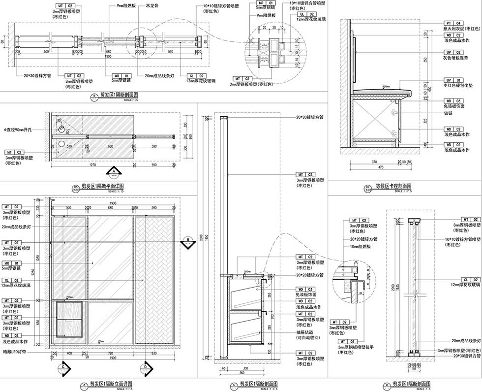
▼立面圖








