本項目來自一家深圳羅湖餐廳,作為蒙古風格的燒烤店類別的餐廳裝修,我們將設計效果圖當中文化的表現作為主要關注點:
空間分割:采用蒙古建筑的典型手法,空間大都采用半封閉方式,流動則為一體,分割則為幾個功能區(qū)間。
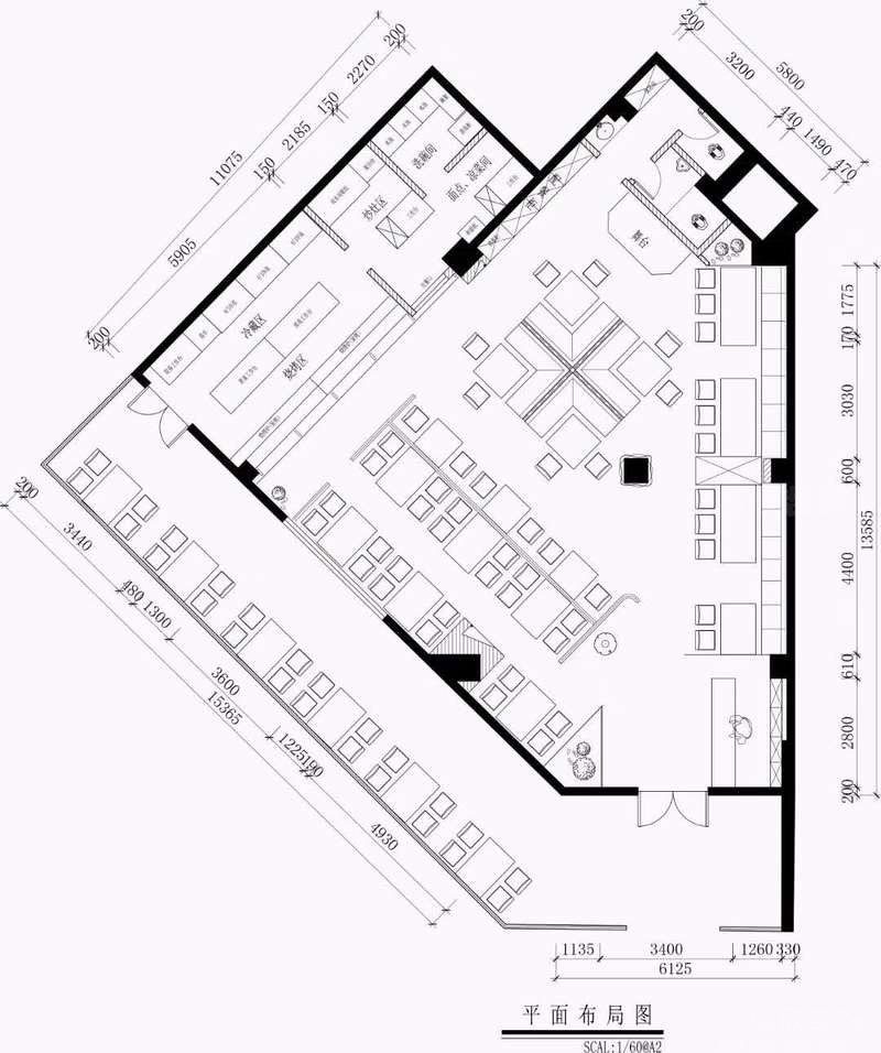
功能布置:設計師將室內主要用餐區(qū)作為中央樞紐,成為視線的焦點和空間組織的向心點,圍繞中心柱自然分布了餐位。
地臺與排風的結合:將燒烤爐的排風系統引入建筑風格的地臺架空層,通過下排風系統進行油煙排放。
自然材質的使用:內部裝修采用自然石材,木材,用于顧客可觸摸的地面,墻面,家具制作,帶給顧客自然舒適的感覺。
對于地處鬧市區(qū)的商業(yè)空間來說,營造出蒙古風格特有的寧靜與自然的氛圍是一個巨大的成就。
本案中設計師將室外空間進行封閉后,摒棄了周邊環(huán)境對室內空間的干擾,在此基礎上,全面采用蒙古混搭簡約風格的設計元素,最終營造出極具私密性的空間感覺,和別有洞天的用餐空間氛圍。
在蒙古語中,額吉意思就是母親,品牌的經營理念就是讓每位顧客用餐時都能體驗到母親般的關懷。
弧形的裝飾酒柜以及格柵板造型服務臺簡單之中蘊含精致,灑脫、雕琢之處不失簡約。
寶石藍的絨布餐椅提煉中西藝術精華,不經妝前的樸素,突破傳統設計思維,展現合壁后優(yōu)越氣息,予人安定富足感。







