- 合東公司深圳羅湖東門辦公室裝修工程。公司主要經營通風、空氣進化設備的生產銷售。信欣深圳裝修公司2016年 裝修案例,公司面積約490平方米,共兩層。
一樓總面積210平方米,主要為公共辦公區84平方米共18個 工位,設計部經理室共2個工位22平方米,總經理辦公室面積28平方米,市場部40平方米共8個工位,會 議室20平方米可容納10人使用。另設有一個小衛生間。
二樓面積140平方米,有大會議室一間面積80平方 米可容納22的會議使用。談室一間,還有員工休息區。
辦公室裝修采用暖色調,黃色的木紋復合地板 ,墻面黃色木紋飾面,橙色的布藝窗簾。以黑白灰色作為對比色,黑白色的鋼木結構經理桌,黑白色的 辦公椅。冷暖搭配,相得益彰。公司位于南山區科技園科苑北區,背面靠山,窗外風景優美,全玻璃落 地窗,引入室外綠景。室內也多擺放綠色植物,與室外風景相呼應。

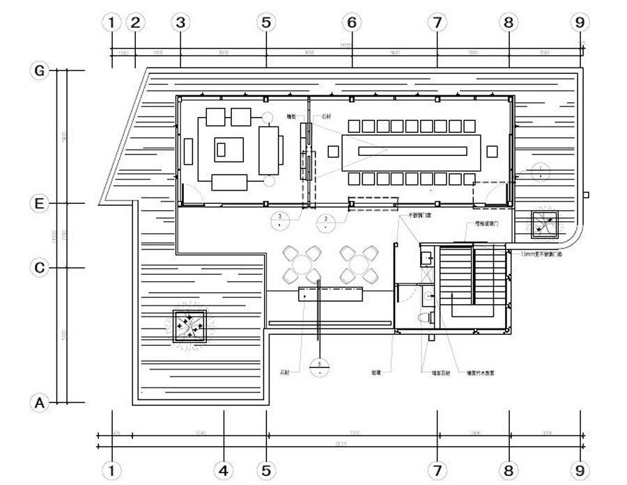
深圳羅湖東門辦公室裝修_二樓平面圖
二樓設有會議室、洽談室、休閑區。

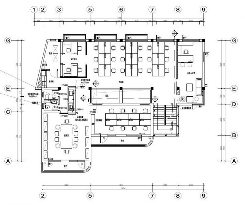
深圳羅湖東門辦公室裝修_一樓平面圖
一樓設公共辦公區,共28個辦公位,經理辦公室和會議室等。

深圳羅湖東門辦公室裝修_公共辦公區
地面鋪復合地板,鋼腳結構木臺面辦公桌,長條形LED吊燈,橙色布藝窗簾,鋼化玻璃欄桿。

深圳羅湖東門辦公室裝修_公共辦公區全景
白色鋼木結構辦公桌,原樓板底不做天花,邊沿石膏板天花暗藏中央空調。柱子和局部墻面貼楓木飾面。

深圳羅湖東門辦公室裝修_走道
地面復合地板,柱子貼木板裝飾,白色烤漆柜洗手臺,石膏板天花裝孔燈。

深圳羅湖東門辦公室裝修_經理辦公室
木制矮柜文件柜,鋼木結構經理桌,黃色布藝沙發,創意壁燈。

深圳羅湖東門辦公室裝修_展示柜
白色烤漆方格子展示柜,灰色方鋼框架玻璃隔斷。

深圳羅湖東門辦公室裝修_會議室
白色臺面會議桌,灰白色會議椅,白色木板書架,創意黑色鐵藝吊燈,石膏板天花刷白色乳膠漆。

深圳羅湖東門辦公室裝修_洽談室
白色布藝沙發咖啡色靠墊,深色柚木茶幾,深色柚木圈椅。墻面貼墻紙裝飾,石膏板天花暗藏中央空調。

深圳羅湖東門辦公室裝修_大會議室
白色會議桌,灰色透氣會議椅,石膏板天花刷白色乳膠漆,墻面灰色肌理漆。

深圳羅湖東門辦公室裝修_樓梯
墻面木板裝飾,樓梯踏步木板貼面,鋼化玻璃欄桿,銀色雕制景觀臺。

深圳羅湖東門辦公室裝修_洽談區2
白色和咖啡色相搭配布藝沙發,圓形落地燈,







