我們一直在思考,怎樣的空間能讓我們享受到美,怎樣的辦公室才會讓我們的工作愉悅,還能顯得高端。本案是位于深圳福田東海國際中心辦公室裝修案例,把我們思考的問題得到了實際的展現,那么此辦公空間的設計是符合時代性的設計,符合現代人辦公的特點,高檔、又容易被接受、還不不高調,一眼看上去,就覺得有底蘊。本案的空間面積是最大的問題,隔得太明顯,不僅影響整體檔次,而且影響采光,所以我們要從設計上去體現空間整體平衡的考慮。
水吧區被設計成吧臺和接待區,靈感源于層巒疊嶂、云遮霧罩自然形態,營造出清新舒適的質感空間。
入口大廳和前臺,高級雅致與商務穩重融洽并存。
功能與美感兼具,刺激創造力和創新思維,增加交流和溝通。
鏤空柜體的隔斷,劃分了功能區,讓空間具有獨立性,但又最大化的擴展的空間。
木材與石材相結合,剛硬不失柔美。在落地窗的包容下,陽光得以眷顧每寸角落,將整體空間烘托得溫暖雅致。
這是思維碰撞的暢談區,在疲倦或靈感枯竭時,是轉換思緒、一鍵切換工作狀態的場所。
洽談區與水吧臺的結合,兩者看似各司其職,實則動靜相生。
筆墨紙硯文房四寶靜伏于案,茶盞置于會客幾前,中國式的風雅日常,為會客體驗更增一份優雅與閑適。
黑白灰的基調,將極簡主義高級優雅融入室內陳設。
舒服的自然光,簡潔利落的室內線條,無不彰顯辦公空間的格調與品位。
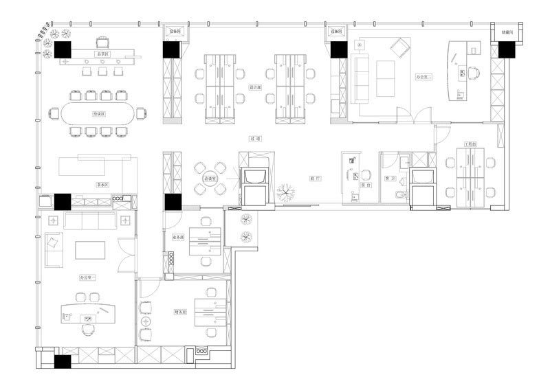
平面布置圖







