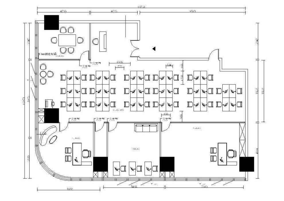
辦公室裝修設計第一步就是平面布局設計,平面布局關系到功能分區,走道動線,辦公效率等很多因素。
平面布局規劃是設計工作的開始,那么應當參照那些要點進行辦公室裝修平面布局設計呢?

總經理室
1.總經理或董事長辦公室一般會設置在整個辦公區最里面的地方
2.獨立辦公室
根據公司實際需求劃分多個獨立辦公室,一般會設置總經理辦公室、部門經理辦公室、研發部、市場部、財務室等獨立辦公室、
3.公共辦公區
根據公司員工人數設置相應的辦公位,一般辦公桌尺寸1.4米*0.6米,加上辦公椅位置,每個辦公位尺寸約1.4米*1.4米。
4.前臺區
按照比例設置前臺區面積,辦公室面積比較大就設置比較大的前臺區,一般300平米辦公室前臺區20平米比較合適。
5.過道
主過道需1.2米以上寬度,輔過道0.9米寬度
6.其他
每個公司辦公需求不一樣,信欣深圳裝修公司列舉一些常用的功能供參考。
接待室,用于接待訪客、招聘面試等、溝通洽談,一般設置于前臺區附近。
會議室,大小跟根據公司需求,使用率比獨立辦公室要少很多,有時候需要播放投影,可設置在光線不好的區域,把采光好的區域設置為辦公區。
茶水間,擺放飲水機,洗手盆,也可用于員工中午熱飯的區域。





