宜興公司深圳辦公室裝修,公司位于羅湖區蓮塘,屬于一個獨棟6層改造的辦公室,,每層230平方米.信欣深圳裝修公司于2015年3月完工,工程總造價96萬。
一 層是前臺區,和接待大廳。地面鋪仿大理石地磚,形象墻以大理石裝飾。
二三層是辦公區,辦公區裝修 以淺色調為主,淺色調可以使光線均勻明亮柔和,適宜于辦公,所以淺色調是辦公空間的首選色調。地 面鋪淺米色拋光磚,辦公卡座也是白色邊框結構,配淺藍色布紋隔斷以豐富空間色彩,天花采用600*600 方塊石膏板天花。房門采用櫻桃木色房門以點綴辦公環境。
四層五層是會議室和培訓室和一些其他辦公 室裝修。裝修風格偏現代,色彩采用暖色調,是辦公場景顯得溫馨雅致。地面鋪方塊地毯,墻面體咖啡 色墻紙,配以沙比利木房門。會議室地面鋪深咖啡色地毯,墻面凹凸軟包造型裝飾。淺色的沙發茶幾, 與墻面地面形成深淺色對比。天花采用了石膏板造型天花,做成弧形的燈槽造型。會議室地面鋪黃色花 紋地毯,紅木色實木會議桌,米黃色的真皮會議椅。
六層是董事長辦公室。信欣深圳裝修公司案例。

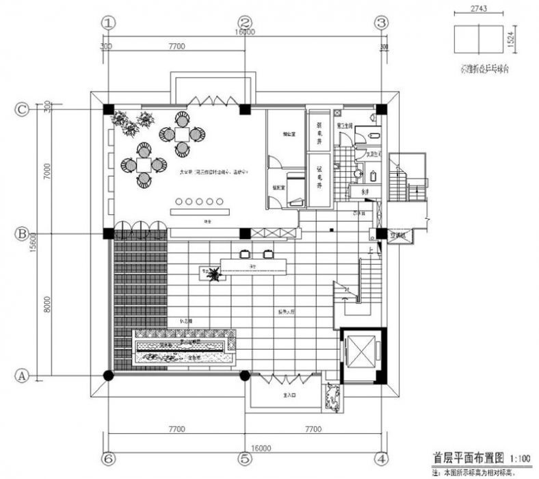
羅湖區暖色調辦公室裝修_首層平面圖
首層為前臺區域,接待大廳。

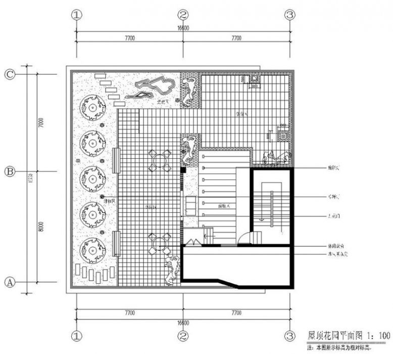
羅湖區暖色調辦公室裝修_屋頂花園

羅湖區暖色調辦公室裝修_六層平面圖
六層為總經理辦公室。

羅湖區暖色調辦公室裝修_五層平面圖
五層包括經理辦公室,小會議室。

羅湖區暖色調辦公室裝修_小會議室
地面灰色條紋地毯,墻面灰色條紋軟包。

羅湖區暖色調辦公室裝修_大會議室
地面鋪黃色花紋地毯。紅木色實木會議桌。

羅湖區暖色調辦公室裝修_洽談室
地面鋪暗紅色地毯,米白色布紋沙發。凹凸軟包墻面裝飾。

羅湖區暖色調辦公室裝修_過道
地面鋪菱形方塊地毯,墻面貼咖啡色墻紙。

羅湖區暖色調辦公室裝修_公共辦公區
地面鋪淺色拋光磚,方塊石膏板天花。

羅湖區暖色調辦公室裝修_二三層平面圖
二三層主要是辦公區域,包括經理辦公室、會議室、公共辦公區。







